リビング階段はホントに人気なのか?

住宅情報サイト「スーモ」で新築戸建て住宅を見ていると半数以上の物件でリビング階段が採用されています。グーグル検索で「リビング階段」を検索すると「家族のコニュニケーションが増える」などのポジティブな情報が出てきます。リビング階段はほんとうに人気なのでしょうか?
結論
人気だと思わされているだけ(つまり売り手の業者の都合)?
どういうことか?
売り手側に、リビング階段を勧めるインセンティブがあります。
・工事費が安く済む
・狭い土地でも広いLDKを実現できる
具体例
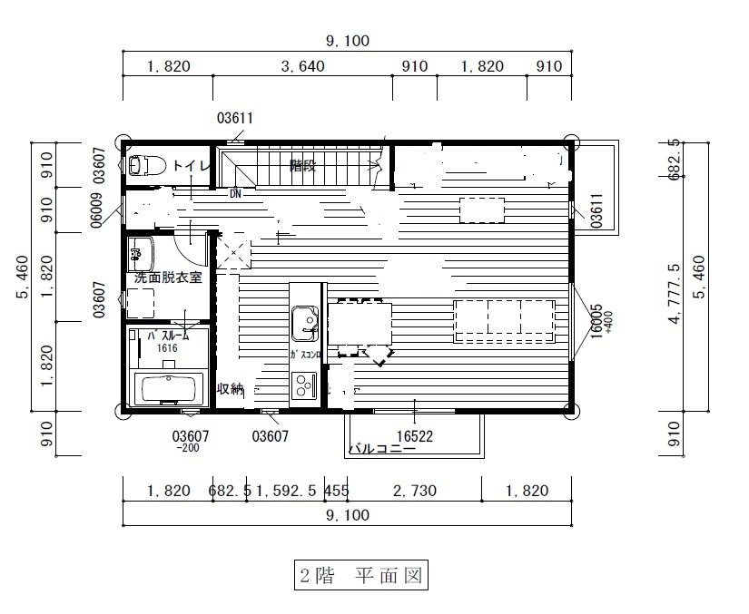
以下は、2022年に建てた、わが家の2階の間取りです(リビング階段ではありません)。

収納と壁をなくしてリビング階段に変更すると以下のような間取りになります。

あーら不思議、18.6帖だったLDKが23.0帖になりました。しかも工事費は建具や壁がないぶん約100万円安く済みます。部屋は広くしたいし費用も抑えたい買い手に対して売り手側が提案できる「魔法の間取り」それがリビング階段です。なのでリビング階段にはさまざまなデメリット(「リビング階段 デメリット」でググれはわかる)もあることも忘れてはなりません。
まとめ
リビング階段がすべて悪いわけではありませんが、売り手側にはリビング階段にするインセンティブが働いていることを理解しておいたほうがよいですね。







ディスカッション
コメント一覧
まだ、コメントがありません